Miért különleges a Citrin?
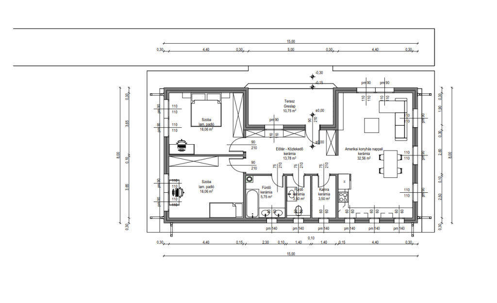
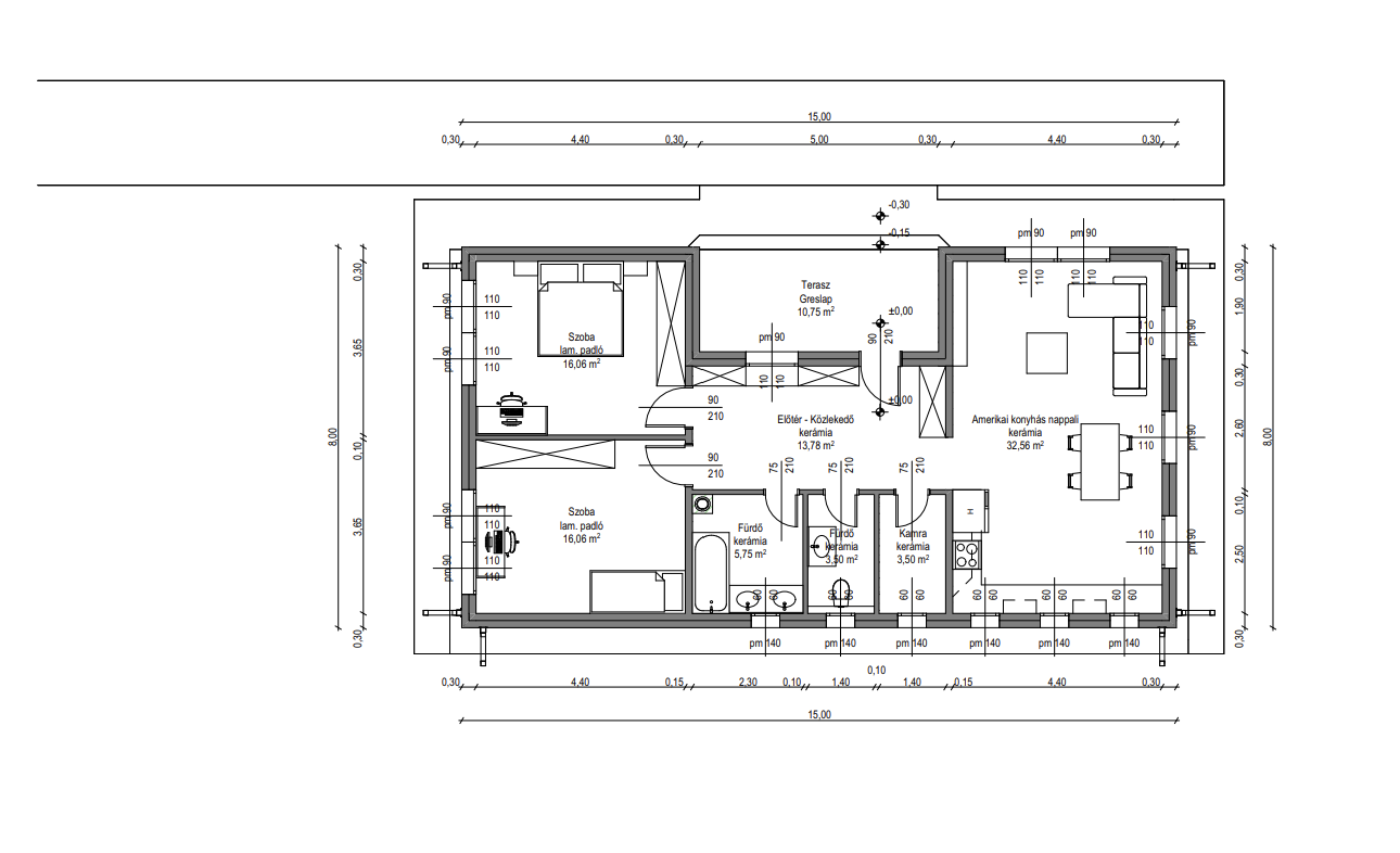
Otthonos terek, felesleges négyzetméterek nélkül
A Citrin ház minden négyzetmétere hasznosan van kialakítva: nem kell lemondani a külön hálószobákról, a közös nappali élményről vagy a tárolási lehetőségekről. A külön kamra és a tágas konyha lehetővé teszi, hogy a főzés ne kompromisszum, hanem öröm legyen.
Energiahatékony működés
A liapor falazat kiváló hőszigetelő képessége révén a ház télen melegen, nyáron pedig hűvösen tart. Az alacsony energiafelhasználás nemcsak környezetbarát, hanem pénztárcabarát megoldás is.
Bővíthető, ha az élet úgy hozza
Mint minden HWS típusház, a Citrin is modulárisan bővíthető – ha a család gyarapodik vagy új igények merülnek fel, az otthon követni tudja az életed ritmusát.
Megjelenés, ami hozzád illik
A ház többféle stílusban rendelhető: lehet modern, klasszikus, mediterrán vagy skandináv hangulatú – úgy, ahogyan te elképzelted.
HWS Home Készültségi Szintek és Ajánlatok – Citrin
- Szerkezetkész – 32.591.000 Ft + ÁFA
Tartalmazza:
- Földmunka, alapozás
- Liapor falazat
- Előregyártott tetőszerkezet és héjazat
- Talajnedvesség elleni szigetelés
- Bádogozási munkák és csatornák
Előnyök:
- Betonba Öntött Garancia
- Saját liapor gyártás
- Bádogozás már az alapcsomag része
- Stabil, időtálló alapozás
- Külsőkész
Tartalmazza az előző szintet, valamint:
- Lábazati és homlokzati hőszigetelés
- Bitumenes vízszigetelés
- 3 rétegű külső nyílászárók
- Homlokzati és lábazati vakolat
Előnyök:
- Kiemelkedő hőszigetelés
- Esztétikus, időtálló külső
- Látható minőség, nyitott gyártási folyamat
- Fűtéskész
Tartalmazza az előző szinteket, valamint:
- 12 cm lépésálló hőszigetelés
- Esztrich betonozás
- Padlófűtés hőszivattyúval
- Elektromos és víz alapszerelés
- Álmennyezet, födémszigetelés
Előnyök:
- Korszerű, hatékony fűtési rendszer
- Hosszú távon gazdaságos fenntartás
- Teljes körű gépészeti előkészítés
- Kulcsrakész
Tartalmazza az előző szinteket, valamint:
- Beltéri ajtók
- Hideg- és melegburkolatok
- Szaniterek, fürdőszoba csempe
- Glettelés, festés
Előnyök:
- Azonnal költözhető
- Magas minőségű, harmonikus enteriőr
- Kényelmes, kész megoldás minden részletre
A Citrin otthon: ahol a mindennapok kényelmessé válnak
Ez az otthon nem hivalkodó – de minden pillanatban ott van benne a gondoskodás, az átgondoltság és a nyugalom. A Citrin azoknak szól, akik a valódi életminőséget keresik.
HWS Home – Az álmaid biztos alapokon.
Ha szeretnéd, hogy a Citrin otthon a te történeted része legyen, keress minket bizalommal – indulhat az álomépítés!

