Karneol: Az otthon, ahol a család együtt van – bent és kint
112,5 m² | 33.637.500 Ft + Áfa-tól
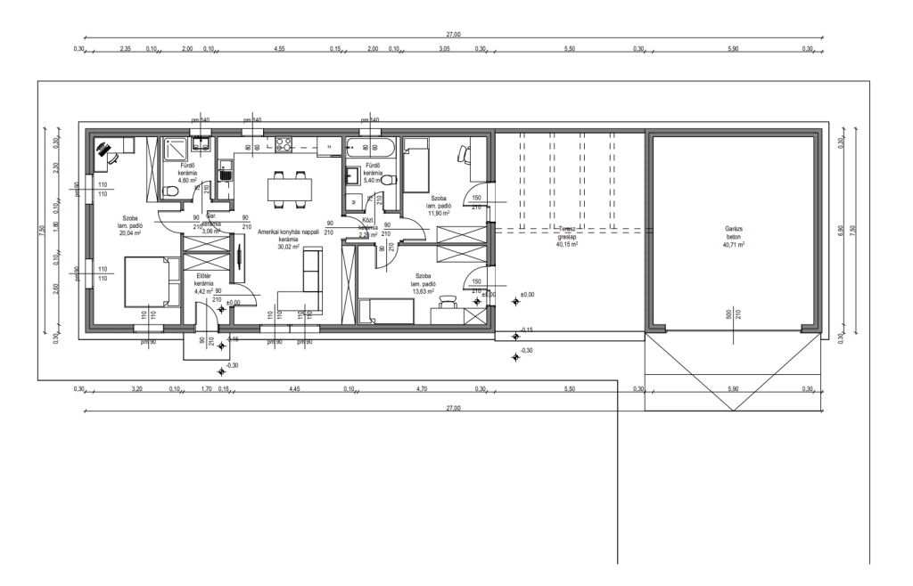
A Karneol ház tágas elrendezésével, három hálószobájával és hatalmas teraszával valódi közösségi otthon. Ez a típus azoknak készült, akiknek fontos, hogy az otthonuk ne csak lakótér, hanem találkozási pont is legyen – családnak, barátoknak, élményeknek.
Miért különleges a Karneol?
Három háló, két fürdő – mindenki kényelme garantált
A Karneol házban nem kell kompromisszumokat kötni: a szülők és a gyerekek is saját térben élhetnek, a két fürdő pedig egyszerűsíti a reggeli készülődést vagy a vendégfogadást. Ez az otthon valóban a családi harmóniát szolgálja.
Nagy nappali és konyha, egyben – együtt élni jó
A nyitott konyha és nappali ideális tér a közös főzésekhez, játékhoz vagy esti beszélgetésekhez. A Karneol nem zár el, hanem összehoz.
A terasz: a ház természetes kiterjesztése
A Karneol egyik legnagyobb előnye a nagy terasz, ami tavasztól őszig egy második nappaliként használható. Egy reggeli kávé, egy esti grill, vagy csak a hétköznapok kiszabadítása a szabadba – itt mindig van hely.
Letisztult forma, sokféle stílus
A Karneol ház többféle stílusban is rendelhető: modern, skandináv, mediterrán vagy klasszikus – ahogy neked a legotthonosabb.
HWS Home Készültségi Szintek és Ajánlatok – Karneol
- Szerkezetkész – 33.637.500 Ft + ÁFA
Tartalmazza:
- Földmunka és alapozás
- Liapor falak
- Tetőszerkezet, tetőhéjazat
- Talajnedvesség elleni szigetelés
- Bádogozás, csatornarendszer
Előnyök:
- Betonba Öntött Garancia
- Fagyhatár alatti alapozás
- Saját liapor gyártás
- Komplett szerkezet már a kezdetektől
- Külsőkész
Tartalmazza az előző szintet, valamint:
- Lábazati és homlokzati szigetelés
- Bitumenes vízszigetelés
- Külső nyílászárók 3 rétegű üvegezéssel
- Homlokzati és lábazati vakolat
Előnyök:
- Alacsony fenntartási költségek
- Hosszú távú értékállóság
- Megbízható kivitelezés, nyomon követhető gyártás
- Fűtéskész
Tartalmazza az előző szinteket, valamint:
- 12 cm lépésálló hőszigetelés
- Esztrich betonozás
- Padlófűtés hőszivattyúval
- Elektromos és vízszerelés
- Álmennyezet, födémszigetelés
Előnyök:
- Egyenletes hőérzet
- Megtérülő fűtési rendszer
- Korszerű technológia minden részletében
- Kulcsrakész
Tartalmazza az előző szinteket, valamint:
- Beltéri ajtók
- Hideg- és melegburkolatok
- Szaniterek, fürdőszobai csempe
- Glettelés, festés
Előnyök:
- Azonnali beköltözés lehetősége
- Letisztult belső terek
- Teljes körű kivitelezés
Karneol: A család otthona
Ez a ház nemcsak falakból áll. A Karneol a közös étkezések, a nyári teraszos esték és az igazi otthonosság tere. Tartós, tágas és igazodik hozzád – a jelenhez és a jövőhöz is.
HWS Home – Az álmaid biztos alapokon.
Ha szeretnéd, hogy a Karneol otthon a te történeted része legyen, keress minket bizalommal!

