Opál – A tiszta kezdet vagy az érett nyugalom otthona
84,75 m² | 25.340.250 Ft + Áfa-tól
Az Opál ház a tökéletes választás azoknak, akik egy megfizethető, mégis kompromisszummentes otthont keresnek. Legyen szó fiatal párról, akik most vágnak bele az első közös otthonukba, vagy egy nyugdíjas párról, akik egy kényelmes, letisztult új életszakaszra készülnek – az Opál minden élethelyzethez igazodik.
Miért különleges az Opál?
Kicsi, de teljes értékű
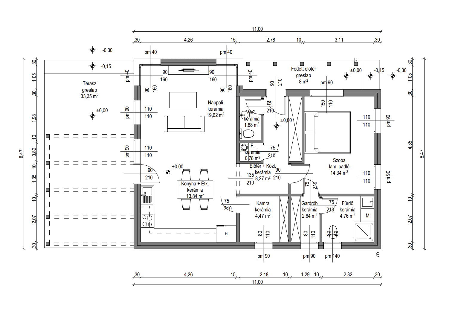
Az Opál alig több mint 84 négyzetméteren biztosít mindent, amire szükség lehet: tágas nappali, különálló háló, jól felszerelt konyha, kamra és gardrób. Nem kell lemondani semmiről, csak a felesleges terek után fizetni.
Alacsony fenntartás – magas komfort
A kompakt méret és a liapor falazat kombinációja lehetővé teszi, hogy a ház egész évben kellemes hőmérsékletet biztosítson, minimális energiafelhasználás mellett.
Bővíthető, ha változnak az igények
Az Opál otthon a HWS Home moduláris rendszerének köszönhetően könnyedén bővíthető, ha a család vagy az élethelyzet új igényeket hoz.
Több stílusban elérhető
Az Opál ugyan kompakt, de megjelenésében teljes értékű. Akár modern, skandináv vagy mediterrán stílust képzelsz el, ez az otthon igazodik hozzád.
HWS Home Készültségi Szintek és Ajánlatok – Opál
- Szerkezetkész – 25.340.250 Ft + ÁFA
Tartalmazza:
- Földmunka, alapozás
- Liapor falazat
- Előregyártott tetőszerkezet
- Tetőhéjazat, csatornarendszer
- Talajnedvesség elleni szigetelés
- Bádogozás
Előnyök:
- Betonba Öntött Garancia
- Saját liapor gyártás
- Fagyhatár alatti alapozás
- Komplett szerkezet, bádogozással együtt
- Külsőkész
Tartalmazza az előző szintet, valamint:
- Homlokzati és lábazati szigetelés
- Külső nyílászárók, 3 rétegű üvegezéssel
- Dörzsölt vakolat, lábazati burkolat
Előnyök:
- Alacsony rezsi, kiváló hőszigetelés
- Megbízható kivitelezés, gyárilag ellenőrzött minőség
- Fűtéskész
Tartalmazza az előző szinteket, valamint:
- Padlófűtés hőszivattyúval
- Esztrich beton
- Elektromos és víz kiállások
- Álmennyezet, födémszigetelés
Előnyök:
- Teljes gépészeti előkészítés
- Kiegyensúlyozott, energiahatékony fűtés
- Tartós és korszerű rendszer
- Kulcsrakész
Tartalmazza az előző szinteket, valamint:
- Beltéri ajtók
- Hideg- és melegburkolatok
- Fürdőszoba csempe, szaniterek
- Glettelés, festés
Előnyök:
- Azonnal beköltözhető
- Modern megjelenés, igényes részletek
- Opcionálisan választható extra kényelmi funkciók
Egy otthon, amit mindenki megérdemel
Az Opál nem túl nagy, nem túl kicsi – hanem pontosan akkora, amekkorára szükséged van. Könnyen fenntartható, mégis bővíthető. Egy okos döntés az élet bármely szakaszában.
HWS Home – Az álmaid biztos alapokon.
Ha szeretnéd, hogy az Opál otthon a te történeted része legyen, keress minket bizalommal – kezdjük el együtt!

